The Vader Affordable House Kit
The Vader Affordable House Kit
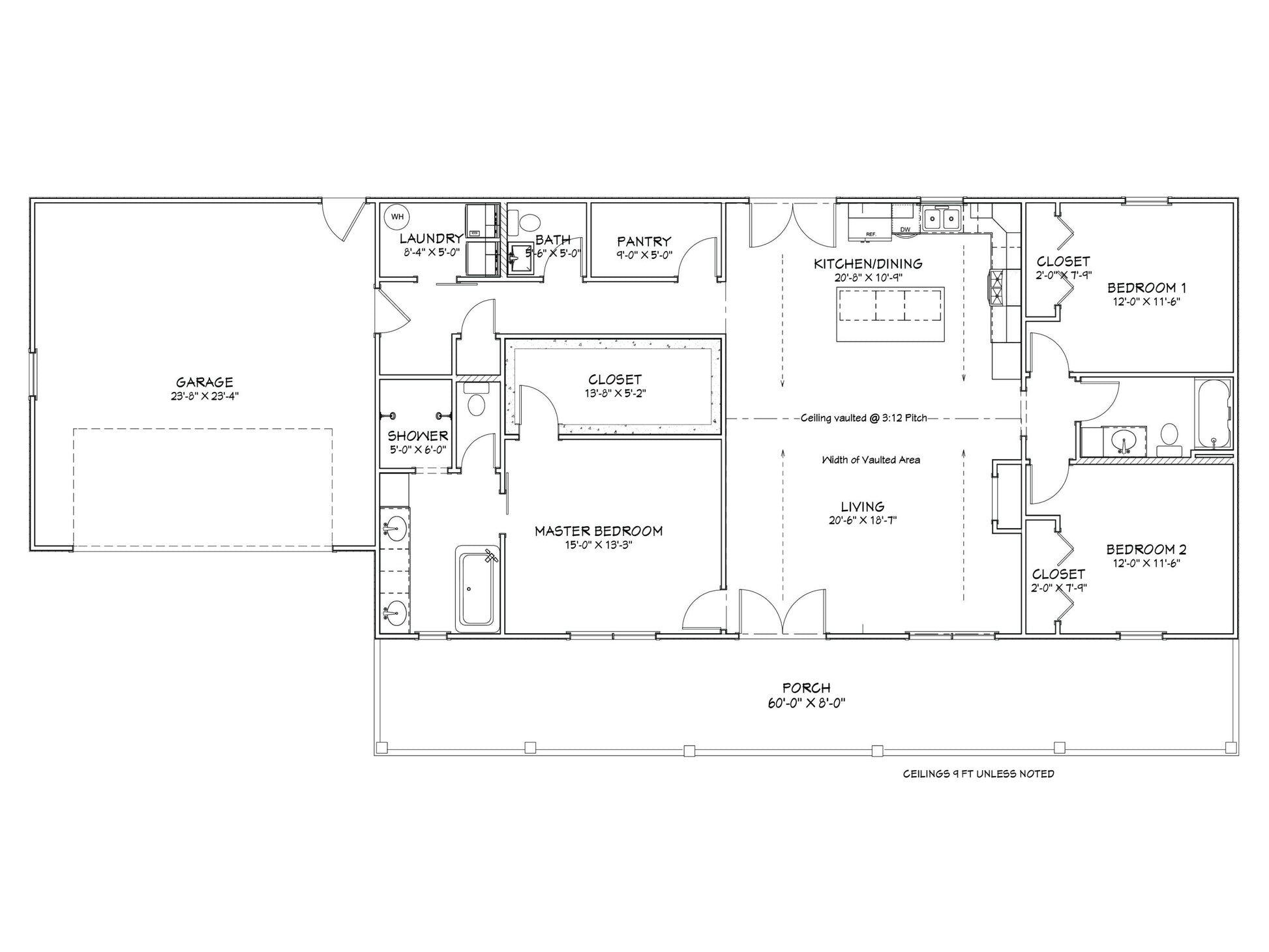
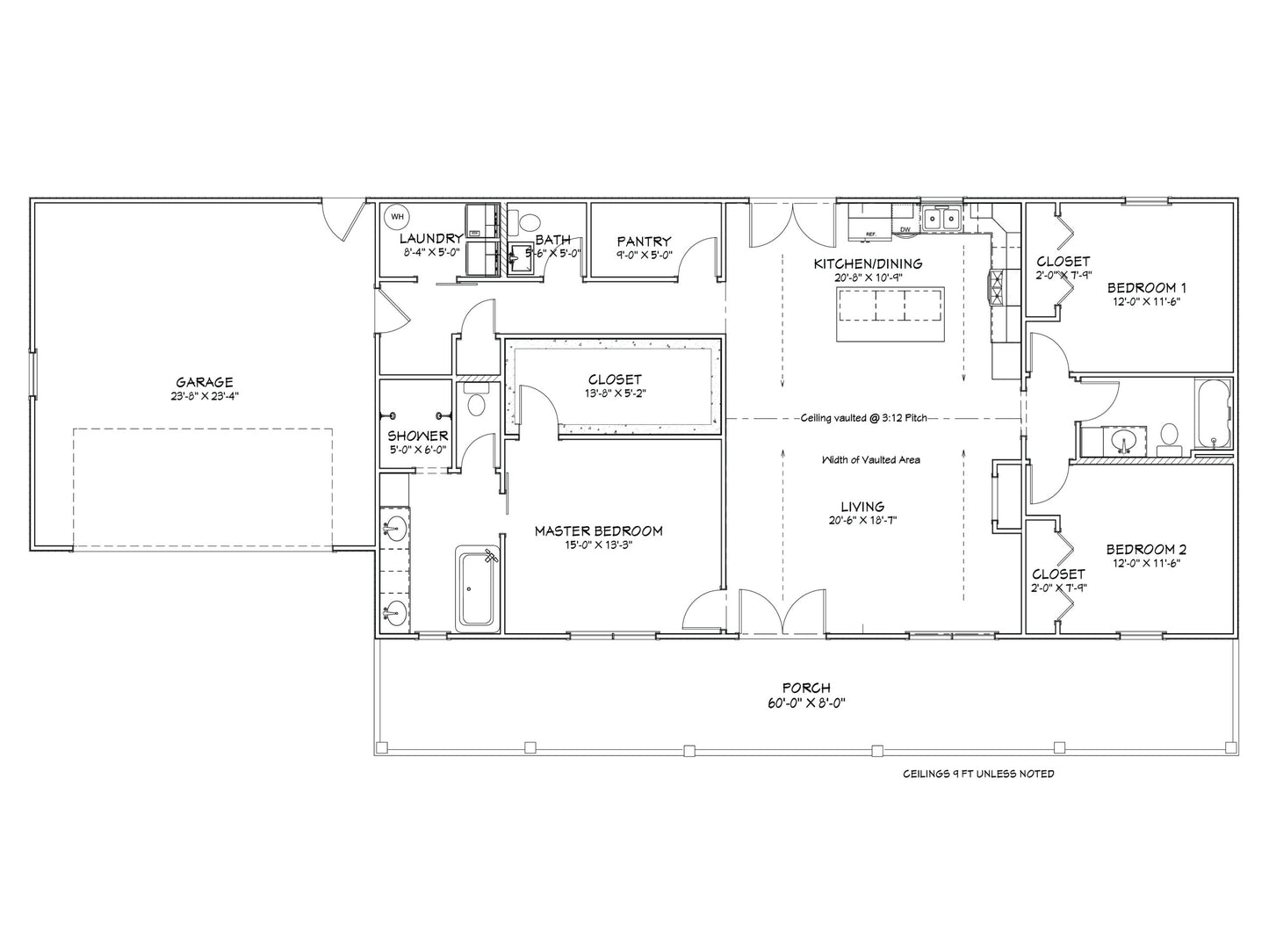
Spacious, modern, and built for families who want maximum value — The Vader Affordable House Kit delivers a powerful combination of size, durability, and affordability. This impressive 3-bedroom, 2-bath home includes an attached garage and offers 2,856 sq. ft. under roof, with 1,800 sq. ft. of living space.
With its wide 30×60 footprint, heavy-duty framing, and upgraded 26-gauge metal exterior, The Vader stands out as one of the best-priced large home kits available in the U.S.
🔥 SALE PRICE: $67,900
💲 Regular Price: $77,900
🚚 FREE Shipping to the Lower 48 States — Limited Time Only
📞 Call Now: 812-595-4033
INSTALLATION OPTIONS
Due to high demand, installation is only available within 150 miles of Scottsburg, Indiana.
Customers outside that area may:
-
Install the kit DIY, or
-
Hire their own local contractor
We do not recommend outside contractors, except those within our Amish or Mennonite builder network.
ENGINEERED DRAWING NOTICE
We do not provide engineered drawings because every county’s code requirements differ.
If stamped plans are required:
-
Begin with our generic plans on the website
-
Have them converted into county-approved drawings by a local architect or engineer
-
We will modify the kit to match your engineered requirements (modification fee applies)
WHAT’S INCLUDED IN THE VADER KIT
✔ 30×60×9 Basic Shell with porch and attached garage
✔ 2×6 Exterior Stud Walls (code-ready, fully insulatable)
✔ 2×4 Interior Wall Studs (245’ included)
✔ Exterior Entry Doors:
• (2) 3' House Doors
• (2) 6' House Doors
✔ Garage:
• 18×7 Garage Door Opening (door not included)
✔ Windows:
• (2) 6×5 Vinyl Windows
• (3) 3×5 Vinyl Windows
• (1) 3×3 Vinyl Window
• (1) 2×3 Vinyl Window
✔ Trusses: 2' OC (House) / 4' OC (Garage)
✔ Stud Spacing: 16" OC (House) / 24" OC (Garage)
✔ House Wrap Included
✔ Soffit & Fascia Overhang on Roof
✔ 26-Gauge Metal Roofing & Siding – 40-Year Warranty
✔ 20 Color Options
✔ Upgrade Option: OSB sheathing + premium board-and-batt metal siding
The Vader gives you everything needed to get the home dried-in and weather-tight quickly, allowing you to finish the interior on your own schedule.
ABOUT OUR AFFORDABLE HOUSE KITS
-
Shell-only — interior finishing not included
-
Custom modifications start at $2,500
-
Designed with 2×6 exterior walls for energy efficiency and code compliance
-
Ideal for DIY families, homesteaders, investors, and affordable housing projects
VADER KIT SPECIFICATIONS
-
Total Living Space: 1,800 sq. ft.
-
Total Under Roof: 2,856 sq. ft.
-
Bedrooms: 3
-
Bathrooms: 2
-
Garage: Yes (attached)
-
Dimensions: 60 ft (L) × 30 ft (D) × 9 ft (H)
-
Roof Pitch: 4/12
-
Exterior Framing: 2×6
-
Interior Framing: 2×4
-
Metal Exterior: 26-gauge roofing & siding
READY TO ORDER THE VADER?
📞 Call 812-595-4033
Take advantage of our limited-time sale — get The Vader for $67,900 with FREE shipping to the Lower 48 states while this offer lasts.
Product features
Product features
Materials and care
Materials and care
Merchandising tips
Merchandising tips
Share
