The Campfire Rancher (3 bed 2 bath)
The Campfire Rancher (3 bed 2 bath)
The Campfire Rancher — Amish-Built Cabin
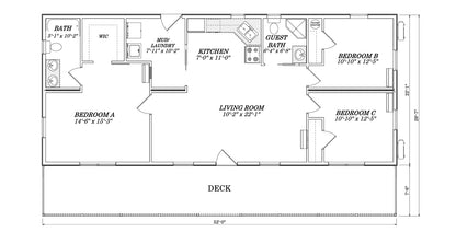
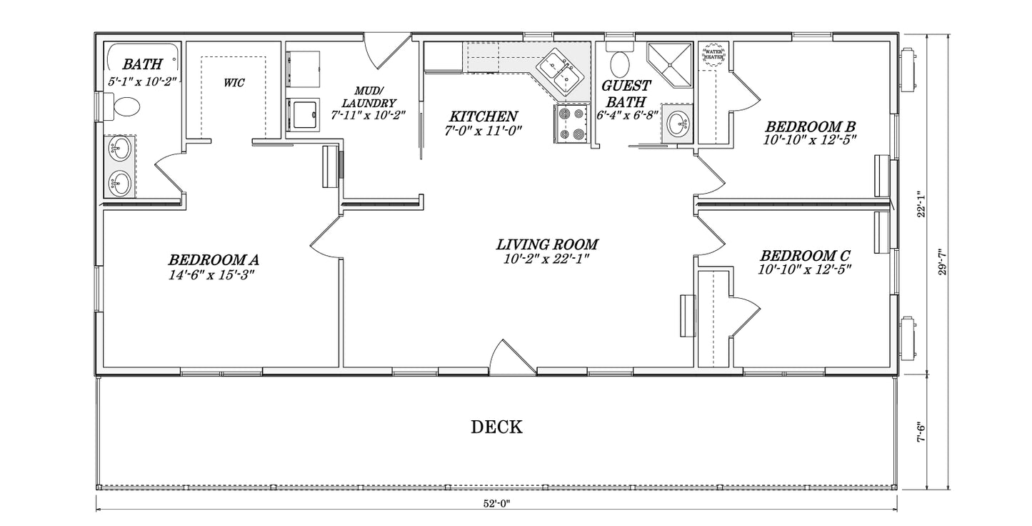
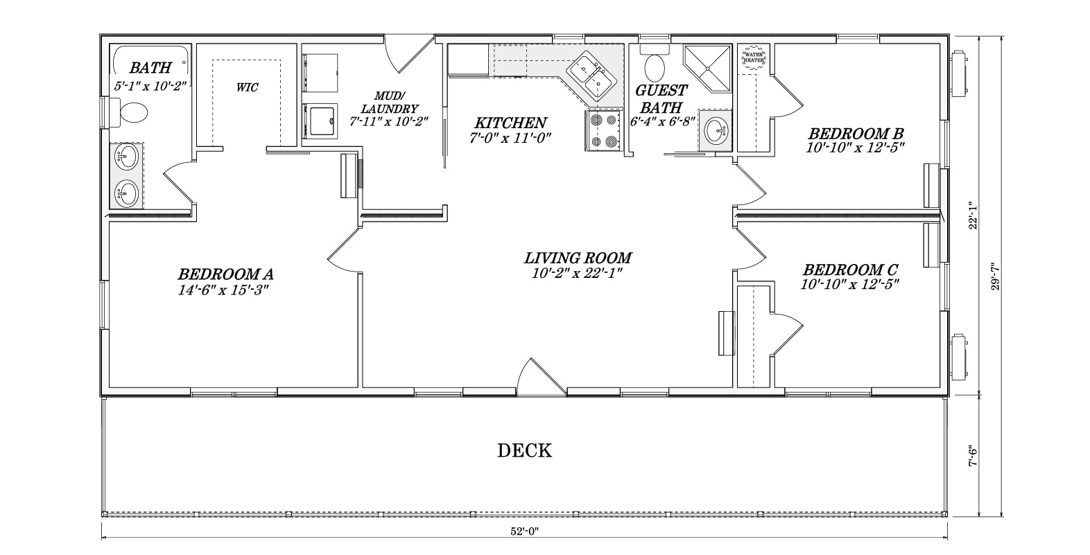
3 Bed • 2 Bath • 1,144 Sq Ft • Covered Porch • Modular Certified
The Campfire Rancher is a beautifully crafted, fully modular, Amish-built home designed for families, vacation living, or high-performing short-term rentals. With a functional ranch-style layout, a long covered porch, and premium construction throughout, this 3-bed, 2-bath cabin delivers both charm and long-term durability. Built to IRC modular standards and engineered for crawl space or basement foundations, the Campfire Rancher gives you true move-in-ready quality with the craftsmanship Amish builders are known for.
Cabin Specifications
Overall Dimensions
-
24' W x 54' L (outside overhangs)
-
22'1" W x 52' L building footprint
-
1,144 sq ft finished living space
-
3 bedrooms | 2 full baths
-
7'6" x 52' covered front porch
Construction & Exterior
-
2×8 floor joists @ 16" o/c with ¾" OSB subfloor
-
2×6 exterior walls @ 16" o/c with OSB subsiding & house wrap
-
2×4 interior walls @ 16" o/c
-
Pre-engineered hinged roof trusses @ 24" o/c
-
½" OSB roof deck with underlayment & ice guard
-
28-gauge textured metal roofing & siding (color TBD)
-
Aluminum soffit & fascia
-
Anderson 100 Series black windows (double pane)
-
ProVia 36" full-glass entry door
-
Matte black exterior hardware
Covered Porch
-
Treated posts, beams, decking & railing
-
Pine tongue-and-groove ceiling with exposed 4×4 rafters (clear finish)
Insulation & Efficiency
-
R19 insulated walls
-
R38 insulated ceilings
-
Energy-efficient windows & doors
-
Designed for long-term comfort in all climates
Interior Finishes
-
Luxury vinyl plank flooring throughout
-
½" birch plywood walls & ceilings — painted white
-
Flush solid-core interior doors (painted)
-
Matte black interior hardware
-
Recessed lighting throughout
-
Ceiling fans with lights in all 3 bedrooms
Kitchen Features
-
Custom kitchen cabinetry (paint color TBD)
-
Flat panel doors, soft-close hinges & slides
-
Laminate countertops (color TBD)
-
Single-bowl stainless steel sink
-
Matte black faucet & hardware
Main Bathroom
-
Custom double-bowl vanity with cultured marble top
-
3' × 5' fiberglass tub/shower combo
-
Matte black faucets & hardware
-
Toilet, exhaust fan/light, vanity mirror & lighting
-
Towel bars, TP holder, shower rod
Guest Bathroom
-
Single-bowl custom vanity
-
3' × 3' fiberglass corner shower
-
Matte black hardware & accessories
-
Toilet, vent fan/light, mirrors & lighting
Utilities & Mechanical
-
50-gallon electric water heater
-
Bosch ductless mini-split system (1 outdoor unit, 4 indoor heads)
-
Washer/dryer hookups
-
200 AMP breaker box with conduit for direct tie-in
-
PEX plumbing lines ready for hookup
-
Exterior outlets & wall lights at each entry
-
Frost-proof exterior faucet
-
Smoke/CO detectors, fire extinguisher (per code)
Optional Installation Package
Our in-house Amish installation team can deliver, crane-set, and finish your home on-site, treating your build as if it were our own.
Estimated installation cost:
$35,000–$75,000 depending on location, permitting, and site requirements.
Available Upgrades
(Prices added to base model)
-
Corrugated metal exterior siding … + $2,000
-
Corrugated metal roof … + $2,500
-
Legacy rib metal roof upgrade … + $750
-
Vinyl board & batten siding … + $1,500
-
Half-round log siding … + $7,500
-
Aluminum porch railing … + $2,900
-
Trex composite porch decking … + $7,950
-
Closed-cell spray foam insulation … + $19,900
-
Pine interior doors … + $2,300
-
Pine T&G interior walls … + $12,500
-
Pine T&G ceiling (clear) … + $5,500
-
Pine T&G ceiling (dark stain) … + $8,200
-
Poplar nickel gap interior … + $28,600
-
Quartz kitchen countertops … + $2,500
-
Butcher block countertops … + $500
-
Tile backsplash … + $2,750
➖ Deduction Options
(These subtract from base price)
-
Anderson windows in white … – $2,500
-
Pine cabinets (clear finish) … – $700
-
Standard metal siding instead of log … – $7,500
Extras Available
(Priced separately)
-
Kitchen appliances
-
Washer/dryer
-
Electric or gas fireplace
-
Tankless water heater
-
Radiant floor heating
-
Ethernet wiring
-
Additional recessed lighting
-
Internal blinds
-
Custom window blinds
-
Glass shower doors
Product features
Product features
Materials and care
Materials and care
Merchandising tips
Merchandising tips
Share
