The Steel Hearth Steel Barndo House Kit
The Steel Hearth Steel Barndo House Kit
🛠️ Steel Hearth – Steel Barndo House Kit
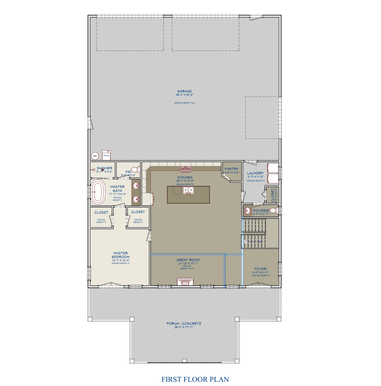
4 Bed | 2.5 Bath | 3-Car Garage | 2,556 sq ft Finished | 4,786 sq ft Under Roof
The Steel Hearth is a stunning fusion of modern style and steel-built strength — designed to handle heavy snow, high winds, and the demands of everyday family living. Built with 16-gauge steel and engineered to meet residential code in all 50 states.
📐 Home Specs:
-
Finished Living Space: 2,556 sq ft
-
Main Level: 1,388 sq ft
-
Second Level: 1,169 sq ft
-
-
Porches: 628 sq ft
-
Garage: 1,602 sq ft (3 bays)
-
Total Area Under Roof: 4,786 sq ft
🏡 Dimensions:
-
Width: 46′
-
Depth: 83′
-
Ridge Height: 32′
-
Roof Pitch: 7:12
-
Ceiling Heights: 9′ + Vaulted Areas
⚙️ Construction Details:
-
Framing: 16-Gauge Steel (Heavy-Duty)
-
Exterior Walls: 2×6 Construction
-
Roof System: Engineered Steel Trusses
-
Floor System: I-Joists
-
Foundation Type: Slab
✅ What’s Included:
-
All 16-Gauge Steel Frame Shell Components
-
Premium Metal Roofing & Siding
-
Exterior Windows & Doors
-
Engineered Drawings – Stamped & Approved for All 50 States
-
Professional Installation
-
Free Shipping & Installation to Most U.S. States
(Be sure to contact us to confirm your state is included!)
🌪️ Built Tough:
-
Rated for heavy snow loads
-
Engineered for high wind zones
-
Designed to meet or exceed residential code nationwide
📞 Call 800-513-1675 to order or get a custom quote today!
📍 Nationwide shipping & installs available.
Product features
Product features
Materials and care
Materials and care
Merchandising tips
Merchandising tips
Share




