The Fireberry Cabin – Luxury Log Home Kit
The Fireberry Cabin – Luxury Log Home Kit
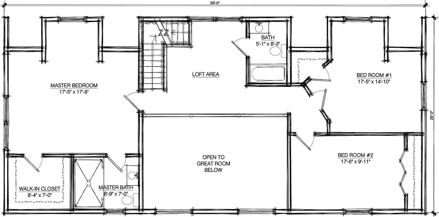
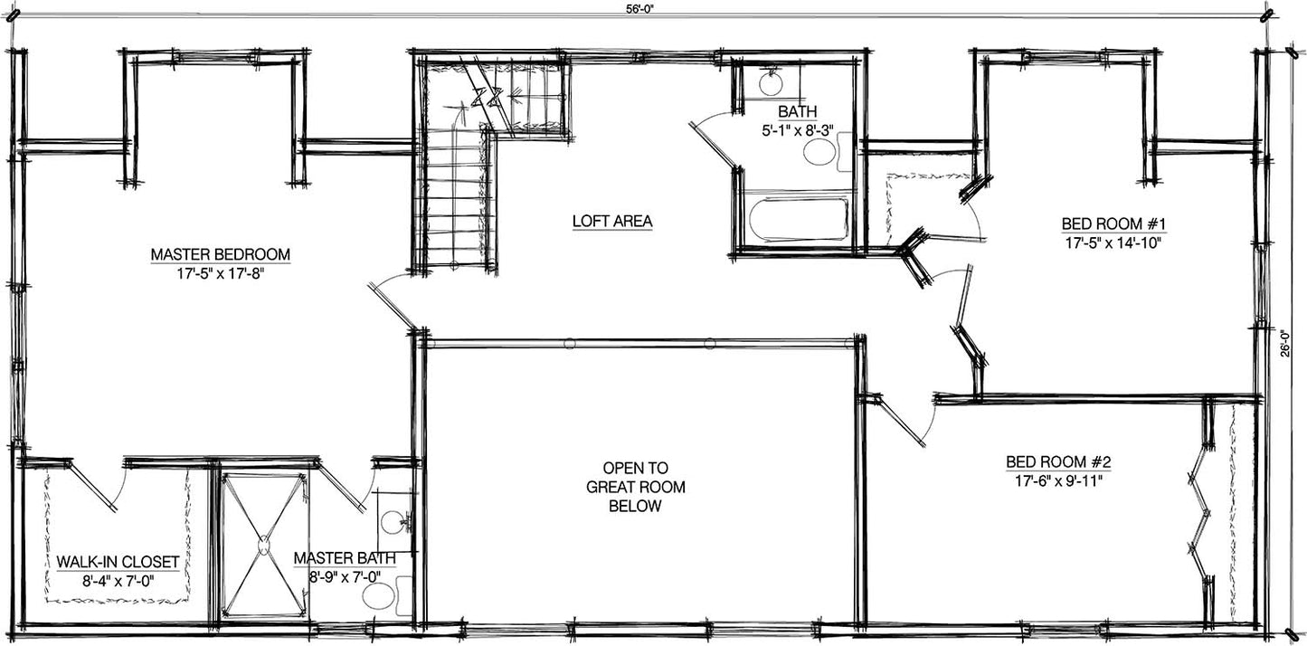
4 Bedrooms · 3 Full Bathrooms · 3,300 Square Feet · 2 Floors
The Fireberry Luxury Cabin Kit is an expansive, architecturally striking home designed for buyers who want elevated living without sacrificing warmth or character. Offering 3,300 square feet of beautifully planned space, this luxury cabin kit features four bedrooms and three full bathrooms across two floors, making it ideal for a forever home, executive retreat, or high-performing vacation rental property.
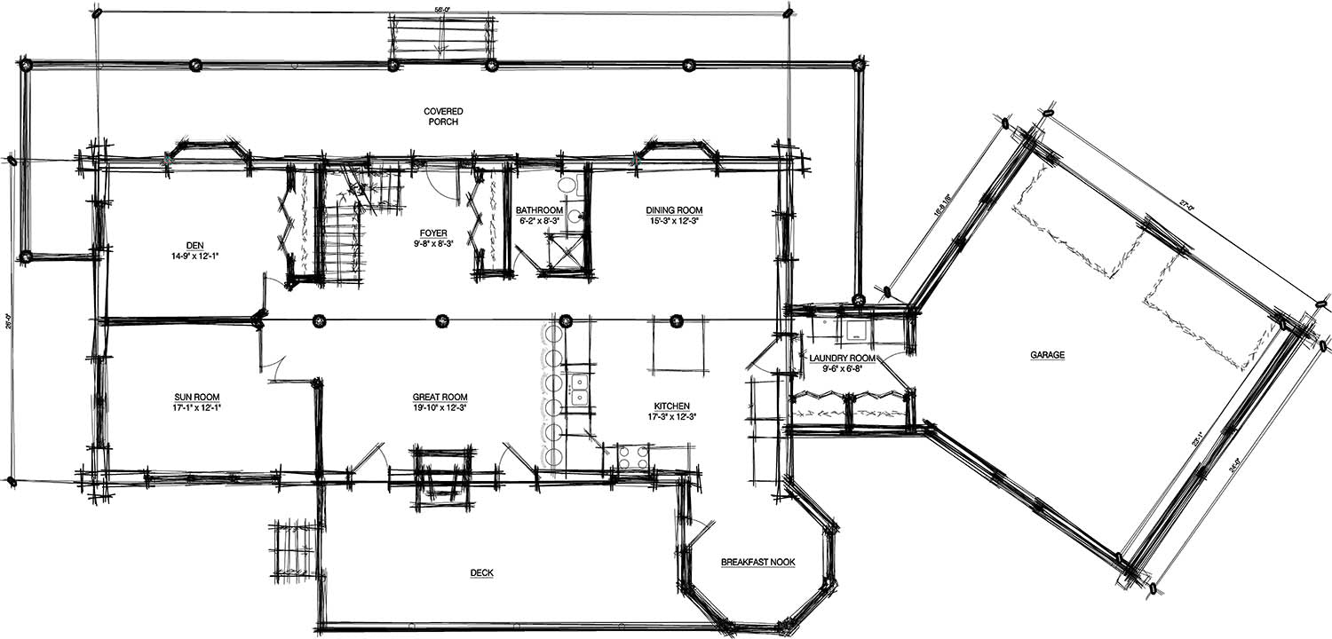
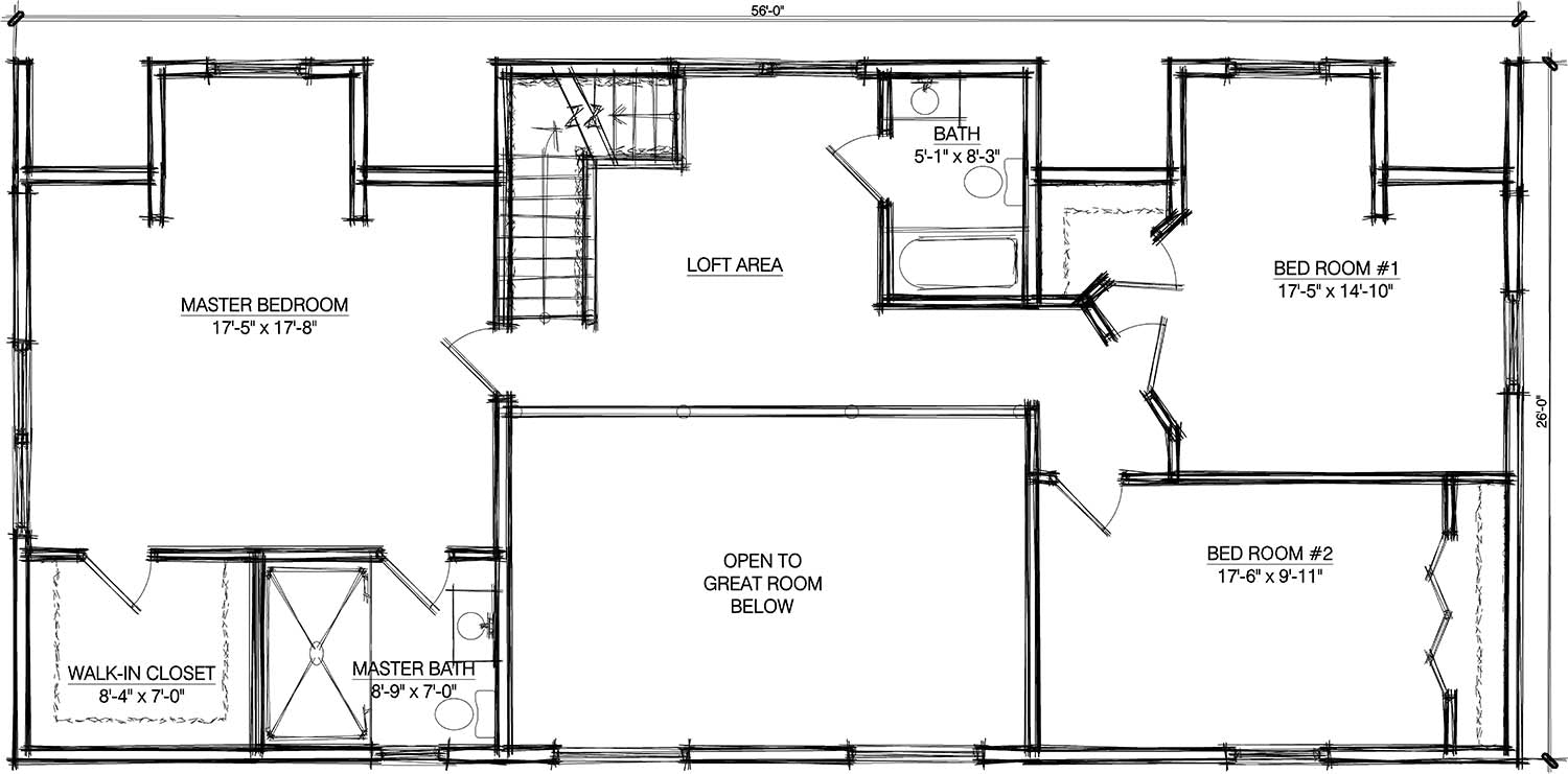
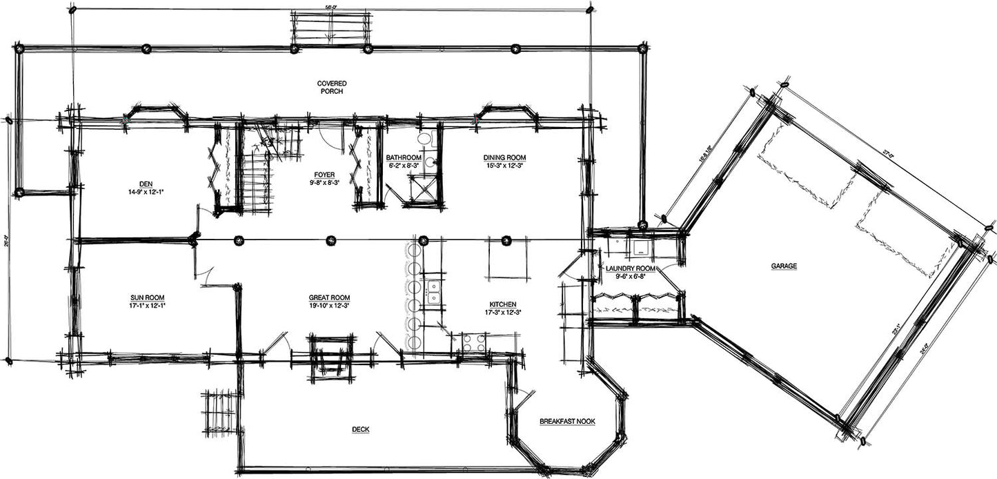
One of the Fireberry’s most memorable design elements is its distinctive octagonal breakfast nook, where windows invite in natural light and create the perfect setting for slow mornings and scenic views. The home flows effortlessly into a spacious great room highlighted by a dramatic cathedral ceiling, delivering a sense of openness typically found only in custom luxury builds.
For modern lifestyles, the Fireberry includes a large dedicated office, allowing homeowners to comfortably work from home while maintaining privacy from the main living areas. Generous bedrooms, thoughtfully placed bathrooms, and intelligent traffic flow make this cabin as practical as it is beautiful. Whether entertaining guests or enjoying everyday life, the Fireberry delivers refinement, flexibility, and timeless appeal.
Log Options, Materials & Craftsmanship
The Fireberry Luxury Cabin Kit is available in 8" x 8" D-logs or 10-inch round logs, giving you the flexibility to select the aesthetic that best complements your land, whether wooded acreage, mountain property, or waterfront terrain. Every log is milled in-house at one of our Midwest manufacturing facilities, ensuring superior precision, consistency, and structural integrity.
We use only premium Eastern White Pine, widely regarded as one of the finest materials in luxury log cabin kits due to its strength, insulation properties, and natural beauty. By controlling the milling process, we deliver a tighter-fitting, higher-quality cabin kit compared to mass-produced alternatives.
What This Cabin Kit Includes (Important)
This offering is a log package kit for the cabin as shown and is NOT a turnkey or move-in-ready home. Site preparation, foundation, interior finishes, mechanical systems, utilities, and final construction are not included unless otherwise specified. Providing this clarity helps buyers fully understand the scope of their cabin kit investment before ordering.
Cabin Kit Availability
The Fireberry Luxury Cabin Kit is available for delivery throughout all 50 states and internationally, making it possible to build your dream cabin wherever your property is located. Amish Built Cabins proudly ships luxury log cabin kits nationwide and worldwide.
Production Timeline & Shipping
Typical turnaround time from order to shipment for our luxury cabin kits ranges from 16 to 18 weeks. Lead times may extend during tax season and other high-demand production periods. Exact timelines will always be confirmed at the time of purchase.
Need Help Putting Your Cabin Kit Together?
Need assistance assembling your luxury cabin kit? The team behind our cabin kits brings over 100 years of combined log home industry experience. If you don’t already have a builder, we can often help connect you with a trusted professional in your area or assist in locating one, depending on availability.
📞 To order the Fireberry Luxury Cabin Kit or to ask questions about luxury cabin kits, log home kits, or log cabins for sale, call 800-513-1675 ext. #1.
Product features
Product features
Materials and care
Materials and care
Merchandising tips
Merchandising tips
Share
