Magnolia Creek Cottage Affordable House Kit (3 bed 2 bath)
Magnolia Creek Cottage Affordable House Kit (3 bed 2 bath)
MAGNOLIA CREEK COTTAGE – DIY HOUSE KIT
Cozy. Efficient. Built to Last.
The Magnolia Creek Cottage DIY House Kit is designed for buyers who want a charming, compact home with strong construction and timeless curb appeal — all at an affordable price.
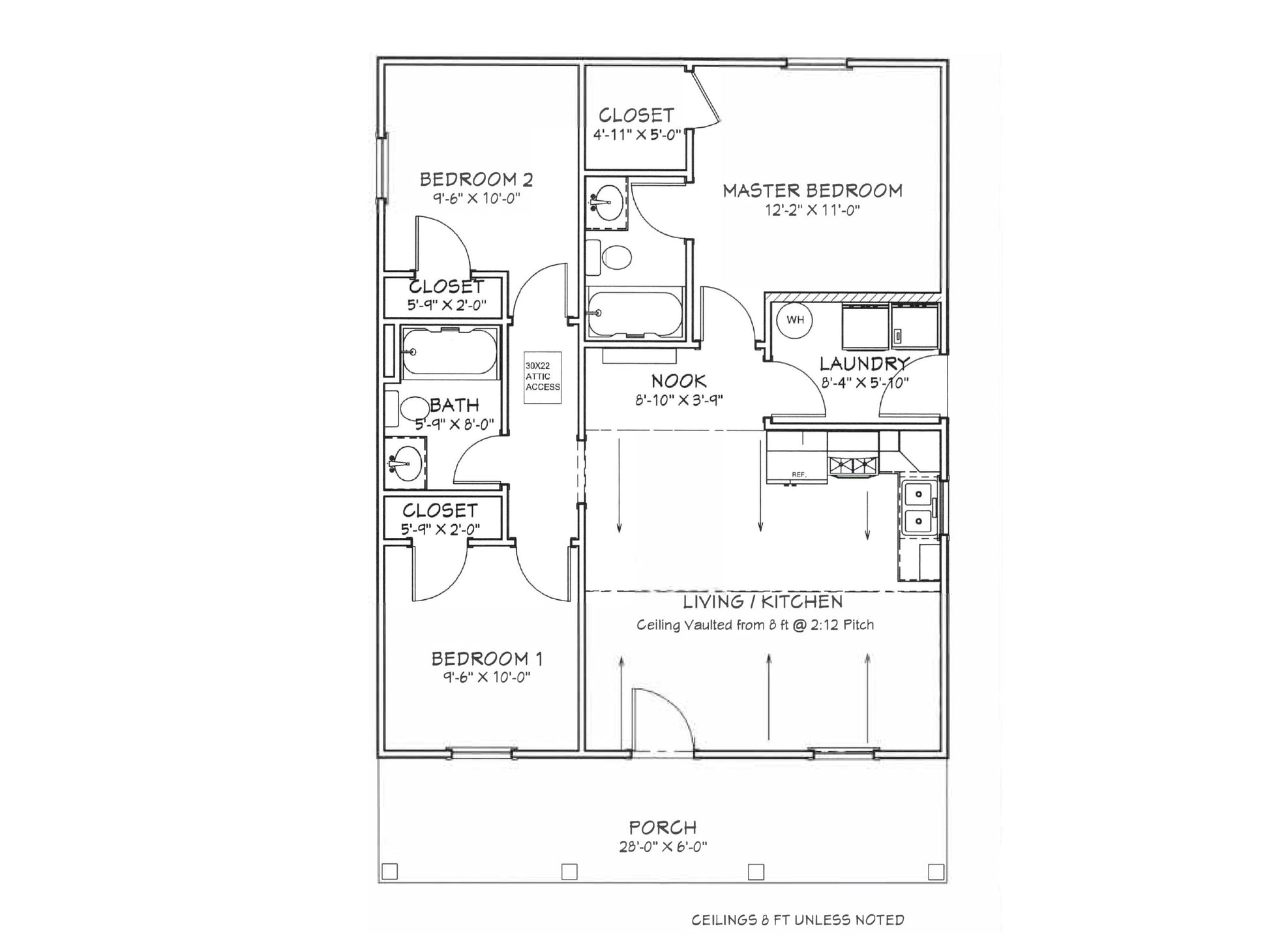
With 952 sq ft of living space, this 3 bedroom / 2 bathroom layout is perfect for starter homes, Airbnb units, guest homes, or downsizing. The inviting porch and steep roof pitch give this home a classic cottage feel with modern durability.
Small footprint. Big value.
WHAT’S INCLUDED
34x28x8 Basic Shell
Porch as shown
Doors:
• (2) 3' House Doors
Windows (Double Pane Vinyl):
• (4) 3x5 Windows
• (1) 3x3 Window
• (1) 2’8” x 3 Window
STRUCTURAL BUILD
• Exterior Framing: 2x6 Stud Walls (strong, insulatable, code-ready)
• Interior Framing: 2x4 Stud Walls (143 ft included)
• Trusses at 2' on center
• Studs at 16" on center
• House wrap included
ROOF & EXTERIOR
• 26 Gauge Metal Roof – 40 Year Warranty
• 26 Gauge Metal Siding INCLUDED
• Soffit and fascia overhang
• 20 color options available
Upgrades Available:
• OSB sheathing (recommended to source locally to save on shipping)
• Premium board & batten metal siding
KITS DETAILS
Price: $39,900
Regular Price: $49,900
Bedrooms: 3
Bathrooms: 2
Garage: No
Total Living Space: 952 sq.ft.
Total Under Roof: 1,120 sq.ft.
Dimensions: 28 ft (L) x 34 ft (D) x 8 ft (H)
Roof Pitch: 6/12
IMPORTANT FOUNDATION NOTE
This kit does NOT include a subfloor
• Most customers install on a concrete slab
• Can also be installed on a crawlspace, piers, or basement
If not installing on a slab, buyer is responsible for building their own subfloor system
ENGINEERING & PERMIT NOTE (IMPORTANT)
• This kit does NOT include engineered or stamped drawings
• A generic floor plan is provided FREE
• We also offer basic blueprints for sale
Buyer is responsible to:
✔ Get plans approved for their county
✔ Work with a local engineer or architect if required
✔ Identify and request any upgrades needed to meet local code before ordering
All code compliance and engineering requirements are the buyer’s responsibility prior to ordering
SHIPPING
FREE SHIPPING – LIMITED TIME
• Applies to the Lower 48 States ONLY
• Alaska and Hawaii excluded
• Additional fees may apply depending on location
• Pricing and delivery offers are subject to change without notice
PRICING
NOW ONLY $39,900
WHY THIS KIT SELLS FAST
✔ 3 bed / 2 bath under 1,000 sq ft
✔ Strong 2x6 exterior framing (locked standard)
✔ Full 26 gauge metal roof and siding included
✔ Small footprint = fastest, cheapest builds
✔ Perfect for rentals, Airbnb, or guest homes
✔ Built for long-term durability
LIMITED TIME OFFER
Call 812-595-4033 to order
If you're looking for a cozy, affordable, and high-value house kit, the Magnolia Creek Cottage is one of the best entry-level options on the market today.
Product features
Product features
Materials and care
Materials and care
Merchandising tips
Merchandising tips
Share
